












Zweifamilienhaus in Steinhagen – perfekt für Mehrgenerationen oder Vermietung
neu
Mindestgebot
350.000€
Zimmer
6
Wohnfläche m2
165 qm
Immobilienart
Zweifamilienhaus
Ort
33803 Steinhagen
Grundstück m2
ca.325 qm
Baujahr
1980
Heizung
Wärmepumpe
Keller
ja - vollunterkellert
Garage/Stellplatz
2 Stellplätze
Balkon/Terrasse
Balkon & Terrasse
Energieausweis
Energieausweistyp: Bedarfsausweis Endenergieverbrauch: 49,9 kWh/(m²*a) Energieeffizienzklasse: A Wesentliche Energieträger: Strom Baujahr laut Energieausweis: 1979
Käuferprovision
zzgl. 3,57% Käufercourtage inkl. MwSt. vom notariell beurkundeten Kaufpreis.
Ansprechpartner
Anja Sperlich +49(0)172 2361 067
Objektbeschreibung
///Beide Wohnungen des Objekts – die eine im Erdgeschoss, die andere im Obergeschoss sind derzeit vermietet und erzielen zusammen eine monatliche Kaltmiete von 1.120 €.///
Dieses gepflegte Zweifamilienhaus in einer der begehrten Lagen Steinhagens bietet vielseitige Nutzungsmöglichkeiten – ideal für Familien, Mehrgenerationenkonzepte oder als Kombination aus Eigennutzung und Vermietung. Das Haus überzeugt durch eine solide Bausubstanz, moderne Technik und viel Potenzial für individuelle Gestaltung.
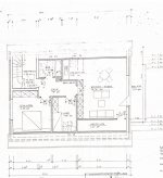
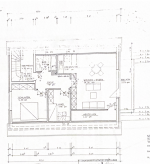
Im Erdgeschoss erwartet Sie ein helles, freundlich geschnittenes Wohnambiente. Die Kombination aus Fußbodenheizung und Parkettboden sorgt für angenehme Wohnwärme und eine hochwertige Ausstrahlung. Vom großzügigen Wohnbereich aus gelangen Sie direkt auf die sonnige Terrasse, die zum Entspannen und Genießen einlädt.
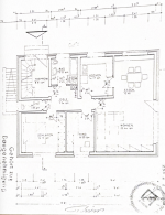
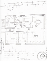
Das Obergeschoss wurde 2004 vollständig renoviert und präsentiert sich in einem sehr gepflegten Zustand. Hier bietet ein eigener Balkon zusätzlichen Wohnkomfort und einen schönen Platz im Freien.
Besonders attraktiv ist der Spitzboden, dessen Ausbau bereits begonnen wurde: Zwei Zimmer sowie ein Bad sind vorgesehen und warten darauf, nach Ihren Vorstellungen fertiggestellt zu werden. So entsteht zusätzlicher Wohnraum mit vielfältigen Nutzungsmöglichkeiten.
Ein weiterer Vorteil des Hauses ist die moderne Wärmepumpe, die für eine effiziente und zukunftssichere Energieversorgung sorgt.
Ob als großzügiges Familiendomizil oder flexible Wohneinheit – dieses Objekt verbindet Komfort, Potenzial und eine gefragte Lage in Steinhagen auf ideale Weise.
Dieses gepflegte Zweifamilienhaus in einer der begehrten Lagen Steinhagens bietet vielseitige Nutzungsmöglichkeiten – ideal für Familien, Mehrgenerationenkonzepte oder als Kombination aus Eigennutzung und Vermietung. Das Haus überzeugt durch eine solide Bausubstanz, moderne Technik und viel Potenzial für individuelle Gestaltung.
Im Erdgeschoss erwartet Sie ein helles, freundlich geschnittenes Wohnambiente. Die Kombination aus Fußbodenheizung und Parkettboden sorgt für angenehme Wohnwärme und eine hochwertige Ausstrahlung. Vom großzügigen Wohnbereich aus gelangen Sie direkt auf die sonnige Terrasse, die zum Entspannen und Genießen einlädt.
Das Obergeschoss wurde 2004 vollständig renoviert und präsentiert sich in einem sehr gepflegten Zustand. Hier bietet ein eigener Balkon zusätzlichen Wohnkomfort und einen schönen Platz im Freien.
Besonders attraktiv ist der Spitzboden, dessen Ausbau bereits begonnen wurde: Zwei Zimmer sowie ein Bad sind vorgesehen und warten darauf, nach Ihren Vorstellungen fertiggestellt zu werden. So entsteht zusätzlicher Wohnraum mit vielfältigen Nutzungsmöglichkeiten.
Ein weiterer Vorteil des Hauses ist die moderne Wärmepumpe, die für eine effiziente und zukunftssichere Energieversorgung sorgt.
Ob als großzügiges Familiendomizil oder flexible Wohneinheit – dieses Objekt verbindet Komfort, Potenzial und eine gefragte Lage in Steinhagen auf ideale Weise.
Objektlage
Steinhagen ist eine attraktive und familienfreundliche Gemeinde im Kreis Gütersloh, die für ihre hohe Lebensqualität, ihre ruhige Atmosphäre und ihre naturnahe Umgebung geschätzt wird. Der Ort verbindet ländlichen Charme mit einer sehr guten Infrastruktur und bietet damit ideale Voraussetzungen für Wohnen, Arbeiten und Freizeit.
Das lebendige Zentrum von Steinhagen hält eine Vielzahl an Einkaufsmöglichkeiten, Cafés, Restaurants und Dienstleistern bereit. Schulen, Kindergärten, Sportvereine sowie medizinische Versorgungseinrichtungen sind umfassend vorhanden und machen den Ort besonders interessant für Familien.
Auch die Verkehrsanbindung ist hervorragend: Über die nahegelegenen Autobahnanschlüsse sind Städte wie Bielefeld, Gütersloh und Osnabrück schnell erreichbar. Zudem besteht ein gut ausgebautes Bus- und Bahnnetz, das Steinhagen optimal an die Region anbindet.
Naturliebhaber profitieren von den zahlreichen Wander- und Radwegen, Wäldern und Feldern rund um den Teutoburger Wald, die zu Erholung und Aktivitäten im Freien einladen. Steinhagen bietet damit eine ideale Mischung aus Ruhe, Natur und guter Erreichbarkeit – ein Wohnort, der sich durch seine Beliebtheit und seinen hohen Wohlfühlfaktor auszeichnet.
Das lebendige Zentrum von Steinhagen hält eine Vielzahl an Einkaufsmöglichkeiten, Cafés, Restaurants und Dienstleistern bereit. Schulen, Kindergärten, Sportvereine sowie medizinische Versorgungseinrichtungen sind umfassend vorhanden und machen den Ort besonders interessant für Familien.
Auch die Verkehrsanbindung ist hervorragend: Über die nahegelegenen Autobahnanschlüsse sind Städte wie Bielefeld, Gütersloh und Osnabrück schnell erreichbar. Zudem besteht ein gut ausgebautes Bus- und Bahnnetz, das Steinhagen optimal an die Region anbindet.
Naturliebhaber profitieren von den zahlreichen Wander- und Radwegen, Wäldern und Feldern rund um den Teutoburger Wald, die zu Erholung und Aktivitäten im Freien einladen. Steinhagen bietet damit eine ideale Mischung aus Ruhe, Natur und guter Erreichbarkeit – ein Wohnort, der sich durch seine Beliebtheit und seinen hohen Wohlfühlfaktor auszeichnet.
Ausstattung
- Holzfenster (2008)
- Wärmepumpe (2008)
- Fußbodenheizung
- Balkon im OG
- Stellplätze
- Terrasse
- Wärmepumpe (2008)
- Fußbodenheizung
- Balkon im OG
- Stellplätze
- Terrasse
Sonstiges
Um Ihre Anfrage schnellstmöglich zu bearbeiten, übermitteln Sie uns bitte mit der Anfrage Ihre vollständigen Kontaktdaten mit Anschrift, Telefonnummer und E-Mail-Adresse. Wir sind aufgrund gesetzlicher Vorgaben und der Vereinbarung mit dem Eigentümer verpflichtet, die vollständigen Kontaktdaten aufzunehmen. Vielen Dank für Ihr Verständnis.
Haftungsausschluss:
vivalog Immobilien&mehr Anja Sperlich eKfr. übernimmt keinerlei Gewähr für die Vollständigkeit, Richtigkeit und Aktualität der bereitgestellten Informationen.
Alle Angaben sind somit ohne Gewähr und basieren ausschließlich auf Informationen, die uns von unserem Auftraggeber übermittelt wurden. Irrtum und Zwischenverkauf vorbehalten.
Die Provision auf den genannten Kaufpreis ist grundsätzlich inkl. gesetzlicher MwSt. ist bei notariellem Vertragsabschluss fällig. (Grundrisse und Zeichnungen nicht maßstabsgetreu) Besichtigungstermine können nur nach Rücksprache mit vivalog Immobilien&mehr vereinbart werden.
Zwischenverkauf und Irrtum vorbehalten.
Widerrufsrecht:
Sie haben das Recht, binnen vierzehn Tagen ohne Angabe von Gründen diesen Vertrag zu widerrufen.
Die Widerrufsfrist beträgt vierzehn Tage ab dem Tag des Vertragsabschlusses. Um Ihr Widerrufsrecht auszuüben, müssen Sie uns (vivalog Immobilien&mehr Anja Sperlich eKfr., Borgholzhauser Str. 8, 33775 Versmold Tel.: 05423 9317430, Mobil: 01722361067 E-Mail: kontakt@vivalog.de, mittels einer eindeutigen Erklärung (z. B. ein mit der Post versandter Brief, Telefax oder E-Mail) über Ihren Entschluss, diesen Vertrag zu widerrufen, informieren. Sie können dafür das beigefügte Muster-Widerrufsformular verwenden, das jedoch nicht vorgeschrieben ist. Zur Wahrung der Widerrufsfrist reicht es aus, dass Sie die Mitteilung über die Ausübung des Widerrufsrechts vor Ablauf der Widerrufsfrist absenden.
Folgen des Widerrufs
Wenn Sie diesen Vertrag widerrufen, haben wir Ihnen alle Zahlungen, die wir von Ihnen erhalten haben, unverzüglich und spätestens binnen vierzehn Tagen ab dem Tag zurückzuzahlen, an dem die Mitteilung über Ihren Widerruf dieses Vertrags bei uns eingegangen ist. Für diese Rückzahlung verwenden wir dasselbe Zahlungsmittel, das Sie bei der ursprünglichen Transaktion eingesetzt haben, es sei denn, mit Ihnen wurde ausdrücklich etwas anderes vereinbart; in keinem Fall werden Ihnen wegen dieser Rückzahlung Entgelte berechnet. Haben Sie verlangt, dass die Dienstleistungen während der Widerrufsfrist beginnen soll, so haben Sie uns einen angemessenen Betrag zu zahlen, der dem Anteil der bis zu dem Zeitpunkt, zu dem Sie uns von der Ausübung des Widerrufsrechts hinsichtlich dieses Vertrags unterrichten, bereits erbrachten Dienstleistungen im Vergleich zum Gesamtumfang der im Vertrag vorgesehenen Dienstleistungen entspricht.
Ende der Widerrufsbelehrung.
Allgemeine Geschäftsbedingungen:
Für den Nachweis oder die Vermittlung zahlt der Empfänger, unbeschadet einer Provision der Gegenseite, bei Erwerb des Objektes durch ihn oder einen Verwandten eine Courtage an vivalog Immobilien&mehr Anja Sperlich eKfr.. Diese errechnet sich prozentual vom Wirtschaftswert des Vertrages unter Einschluss aller damit zusammenhängenden Nebenabreden und Ersatzgeschäfte (Anmietung anstelle Ankauf oder Ankauf anstelle Anmietung). Die Höhe der Courtage ist im Immobilienangebot inkl. MwSt. aufgeführt. Der Empfänger des Angebotes behandelt alle Angaben und Mitteilungen vertraulich. Gelangt durch eine von ihm zu verantwortende Indiskretion ein Dritter zu einem Vertragsabschluss mit einem vom Makler nachgewiesenen Anbieter, so ist der Empfänger zur Zahlung einer Entschädigung in Höhe von 4,76% inkl. MwSt. vom Wirtschaftswert des Vertrages verpflichtet. Für die Richtigkeit und Vollständigkeit kann keine Haftung übernommen werden da vivalog Immobilien&mehr Anja Sperlich eKfr. auf die Auskünfte der Verkäufer, Vermieter, Verpächter, Bauherren, Bauträger und Behörden angewiesen ist.
Haftungsausschluss:
vivalog Immobilien&mehr Anja Sperlich eKfr. übernimmt keinerlei Gewähr für die Vollständigkeit, Richtigkeit und Aktualität der bereitgestellten Informationen.
Alle Angaben sind somit ohne Gewähr und basieren ausschließlich auf Informationen, die uns von unserem Auftraggeber übermittelt wurden. Irrtum und Zwischenverkauf vorbehalten.
Die Provision auf den genannten Kaufpreis ist grundsätzlich inkl. gesetzlicher MwSt. ist bei notariellem Vertragsabschluss fällig. (Grundrisse und Zeichnungen nicht maßstabsgetreu) Besichtigungstermine können nur nach Rücksprache mit vivalog Immobilien&mehr vereinbart werden.
Zwischenverkauf und Irrtum vorbehalten.
Widerrufsrecht:
Sie haben das Recht, binnen vierzehn Tagen ohne Angabe von Gründen diesen Vertrag zu widerrufen.
Die Widerrufsfrist beträgt vierzehn Tage ab dem Tag des Vertragsabschlusses. Um Ihr Widerrufsrecht auszuüben, müssen Sie uns (vivalog Immobilien&mehr Anja Sperlich eKfr., Borgholzhauser Str. 8, 33775 Versmold Tel.: 05423 9317430, Mobil: 01722361067 E-Mail: kontakt@vivalog.de, mittels einer eindeutigen Erklärung (z. B. ein mit der Post versandter Brief, Telefax oder E-Mail) über Ihren Entschluss, diesen Vertrag zu widerrufen, informieren. Sie können dafür das beigefügte Muster-Widerrufsformular verwenden, das jedoch nicht vorgeschrieben ist. Zur Wahrung der Widerrufsfrist reicht es aus, dass Sie die Mitteilung über die Ausübung des Widerrufsrechts vor Ablauf der Widerrufsfrist absenden.
Folgen des Widerrufs
Wenn Sie diesen Vertrag widerrufen, haben wir Ihnen alle Zahlungen, die wir von Ihnen erhalten haben, unverzüglich und spätestens binnen vierzehn Tagen ab dem Tag zurückzuzahlen, an dem die Mitteilung über Ihren Widerruf dieses Vertrags bei uns eingegangen ist. Für diese Rückzahlung verwenden wir dasselbe Zahlungsmittel, das Sie bei der ursprünglichen Transaktion eingesetzt haben, es sei denn, mit Ihnen wurde ausdrücklich etwas anderes vereinbart; in keinem Fall werden Ihnen wegen dieser Rückzahlung Entgelte berechnet. Haben Sie verlangt, dass die Dienstleistungen während der Widerrufsfrist beginnen soll, so haben Sie uns einen angemessenen Betrag zu zahlen, der dem Anteil der bis zu dem Zeitpunkt, zu dem Sie uns von der Ausübung des Widerrufsrechts hinsichtlich dieses Vertrags unterrichten, bereits erbrachten Dienstleistungen im Vergleich zum Gesamtumfang der im Vertrag vorgesehenen Dienstleistungen entspricht.
Ende der Widerrufsbelehrung.
Allgemeine Geschäftsbedingungen:
Für den Nachweis oder die Vermittlung zahlt der Empfänger, unbeschadet einer Provision der Gegenseite, bei Erwerb des Objektes durch ihn oder einen Verwandten eine Courtage an vivalog Immobilien&mehr Anja Sperlich eKfr.. Diese errechnet sich prozentual vom Wirtschaftswert des Vertrages unter Einschluss aller damit zusammenhängenden Nebenabreden und Ersatzgeschäfte (Anmietung anstelle Ankauf oder Ankauf anstelle Anmietung). Die Höhe der Courtage ist im Immobilienangebot inkl. MwSt. aufgeführt. Der Empfänger des Angebotes behandelt alle Angaben und Mitteilungen vertraulich. Gelangt durch eine von ihm zu verantwortende Indiskretion ein Dritter zu einem Vertragsabschluss mit einem vom Makler nachgewiesenen Anbieter, so ist der Empfänger zur Zahlung einer Entschädigung in Höhe von 4,76% inkl. MwSt. vom Wirtschaftswert des Vertrages verpflichtet. Für die Richtigkeit und Vollständigkeit kann keine Haftung übernommen werden da vivalog Immobilien&mehr Anja Sperlich eKfr. auf die Auskünfte der Verkäufer, Vermieter, Verpächter, Bauherren, Bauträger und Behörden angewiesen ist.
